JavaScript is off. Please enable it to view the full site.

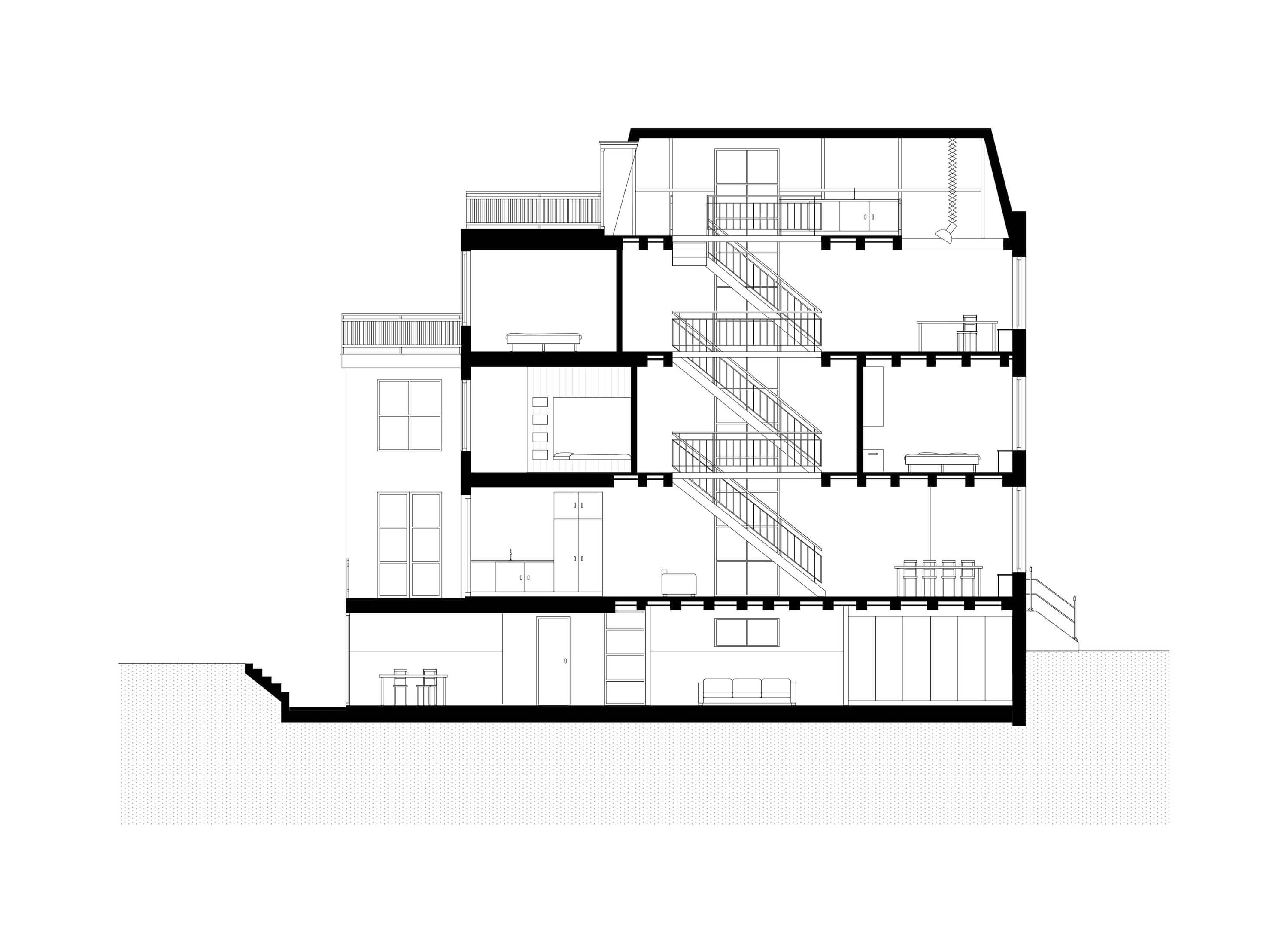
Prinsengracht II

Dit pand op de Prinsengracht was in dermate slechte staat dat uiteindelijk alleen de voorgevel behouden kon worden. Hierdoor waren we wel vrij om de gewenste brandtrap naar de stijl van de panden in New York te plaatsen. Het interieur in het gehele pand is nieuw, waarbij het souterrain - bestaande uit de televisiekamer en de tuinkamer - met een vide verbonden is met de bovenliggende woonverdieping. Alle verdiepingen bieden prachtig zicht op de Noordermarkt. (foto’s Astrid Verhoef)

Klant

particulier

Fotografie

Astrid Verhoef

Delen

Formaat

M 250-500m2

Fase

Gerealiseerde projecten

Team

Hans Kodde, Désirée Stramrood

Jaar

2010

Oppervlakte

300 m2

Terug naar projecten Vorige 63 / 97 Volgende Terug naar boven Toon op de kaart 7150 weergaven
  1. Restauratie Eerder Esch
  2. Prinsengracht
  3. De krakeling
  4. Prinsengracht VII
  5. Kodde Boek 25 jaar
  6. Sanatorium Zonnestraal
  7. Hockeyclub te Amsterdam
  8. Stolp in Noord Holland I
  9. Belvédère
  10. De Lairessestraat
  11. Bunq Bank
  12. Herengracht II
  13. Kruislaan Amsterdam
  14. Amsteldijk
  15. Veendijk Loosdrecht
  16. Lindengracht
  17. Reguliersgracht II
  18. Ten Kate School
  19. Jacob van Lennep
  20. Rieteiland Oost
  21. Prinseneiland
  22. Woonark Amstel
  23. Herman Gorter
  24. Penthouse Amsterdam
  25. Ibiza
  26. Keizersgracht III
  27. Rituals Amsterdam
  28. HogeHuys Haarlem
  29. Herengracht III
  30. Holbeinstraat
  31. Patiowoning Amstelveen
  32. Overveen
  33. Spijtellaantje
  34. Jan Luijkenstraat
  35. Paulus Potterstraat
  36. Vondelstraat II
  37. Zomerhuis Wijdemeren
  38. Dijkwoningen Schellingwoude
  39. Raamstraat Amsterdam
  40. Viottastraat I
  41. Woonark Kleine Poel
  42. Frederiksplein
  43. Willemsparkweg
  44. Minervalaan
  45. CLT in het groene hart
  46. Monster
  47. Viottastraat II
  48. Anjeliersstraat
  49. Duin en Beek
  50. Prinsengracht II
  51. Prinsengracht IV
  52. Prins Hendriklaan
  53. Reguliersgracht I
  54. Woonark Aalsmeer
  55. Durgerdammerdijk
  56. Westerpark Stadsdeel
  57. Boerderij Westerpark
  58. Oude Waal
  59. Dr. Rijk Kramer School
  60. Prinsengracht III
  61. Jockeyhuis
  62. Fros
  63. Johannes Verhulst
  64. Breukelen
  65. Trappenhuis Keizersgracht
  66. Plantage H&A
  67. Winterpaleis
  68. Van Stolkweg
  69. Muiderpoort
  70. Vondelstraat I
  71. Van Breestraat
  72. ONE mahler
  73. Rubensstraat
  74. Koningslaan
  75. Bijenschans
  76. Laurierdwarsstraat
  77. Oranje Nassaulaan
  78. Prinsengracht I
  79. Singel
  80. Herengracht I
  81. Landsmeer
  82. Vinkeveen
  83. Koninginneweg
  84. Vancouver
≈≈≈